?
首页
公司介绍
新闻中心
组织机构
服务理念
售后服务
联系我们
产品中心
xwzx.png

阀门选型

您的位置: > 新闻中心 > 阀门选型 >
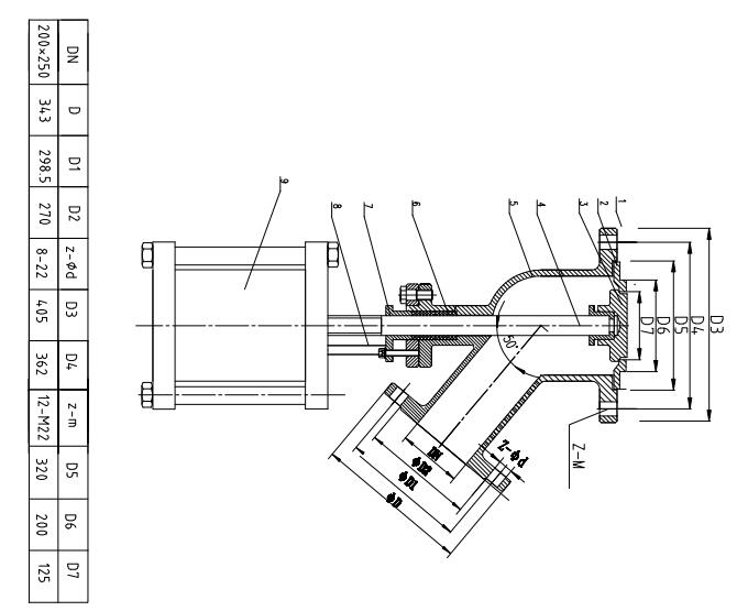
气动下展式放料阀选型误区CAD图纸案例
来源:www.fm058.com作者:上海旺财28有限公司更新时间:2023-03-17 09:03:30
今天我们来讲解一下有关下展式放料阀在选型上的一个误区,也就是说选型时经常会遇到沟通不明确,导致验收不了,特写如下几个误区点。
1、下展式放料阀入口法兰是与常规法兰是不同的。
2、下展式放料阀阀板是不会顶出反应釜底的法兰,与反应釜底的法兰是可以成平面。
3、下展式放料阀阀座可以取掉,直接用阀板密封。
4、下展式放料阀没有阀座以后,在反应釜底会形成一个物料堆积点。
例如:
国标法兰DN250,内孔是250mm,当用户直接把国标法兰焊在反应釜底的时候,我们的下料口并不是250mm,我们还需要一个阀座外径为250mm,内孔为180mm套在反应釜底部法兰,这时留给阀板的位置只有直径为180mm,则下料口直径为180mm。假如由厂家提供反应釜底下的法兰,厂家提供的DN250法兰,内孔会开设到285mm,在套上外径为285mm的阀座上去,内孔留有200mm。
下展式放料阀CAD图纸案例

上一篇:阀门驱动装置的特点和选择 下一篇:没有了
您是第   位浏览者
?

Copyright ?2011-2022 上海旺财28有限公司,版权所有。 沪ICP备11046016号-29 网站地图

销售电话:021-31001158

手机号码:13816746668 陈国辉/经理

电子邮件:klkvalves@126.com@126.com

主营产品:球阀,闸阀,蝶阀,截止阀,止回阀,调节阀

本周热门:不锈钢阻火器全天候呼吸阀气动球阀气动蝶阀气动刀闸阀气动调节阀电动球阀电动蝶阀电动刀闸阀电动调节阀不锈钢球阀不锈钢闸阀不锈钢截止阀不锈钢止回阀不锈钢电磁阀高压电磁阀高压球阀波纹管截止阀

官方网址:www.fm058.com